
1+1=3 O MÁS:
Los arquitectos Sagrario Fernández Raga y Carlos Rodríguez Fernández llevaron a cabo esta intervención en dos apartamentos de 100 m² en un barrio de Santander (España), transformándolos en una única vivienda dúplex. Partiendo de la premisa de la sinergia 1+1=3 o más, el proyecto reorganiza los espacios en torno a una escalera central que articula las zonas de día y de noche, creando nuevas relaciones visuales y espaciales. La propuesta combina flexibilidad, materiales naturales como roble y acero, y soluciones hápticas inspiradas en la tradición japonesa, logrando una vivienda contemporánea que multiplica la funcionalidad y mejora la experiencia sensorial de sus habitantes.
Generar un resultado superior
Los autores del proyecto se inspiraron en una premisa sencilla pero poderosa: 1+1=3 o más. Esta fórmula simboliza la sinergia: la unión de dos elementos no se limita a sumarlos, sino que genera un resultado superior, un espacio nuevo que trasciende la mera adición de partes. Partiendo de esta idea, los arquitectos transformaron dos apartamentos independientes de 100 m² en un dúplex, donde cada intervención multiplica la funcionalidad y enriquece la experiencia de habitar.
Nueva zona de día en la planta baja
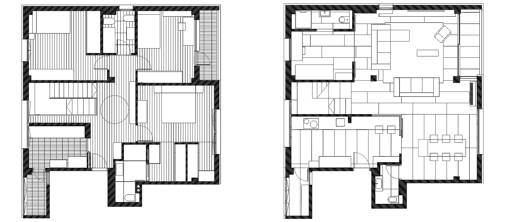
La conexión entre ambas plantas permitió reorganizar los espacios, creando una nueva zona de día en la planta inferior y situando la zona de noche en la superior. El acceso se mantiene en la planta alta, de modo que la intervención más significativa consistió en eliminar el dormitorio que ocupaba el corazón de la vivienda para dar paso a la escalera. Este vacío central se dilata, integra el vestíbulo y se convierte en el núcleo del proyecto, alrededor del cual se articulan todas las estancias, estableciendo nuevas relaciones espaciales y visuales. De esta manera, las dos plantas originales, junto con la escalera que las une, conforman un tercer elemento inesperado: una arquitectura que multiplica la suma, donde dos viviendas dejan de ser dos para convertirse en algo más. 1 + 1 = 3 o más.
Ejes transversales materializados en elementos móviles
El programa de día se desarrolla en la planta baja, organizado de manera flexible según las necesidades de los usuarios. Este nivel gira en torno al estar-comedor que, a su vez, orbita alrededor de la escalera, mientras que la fachada sur se abre al jardín comunitario y la fachada norte acoge los espacios más protegidos: la cocina y el estudio. De este modo, a ambos lados de la escalera se crean ejes transversales que conectan cocina con office y comedor, por un lado, y estudio con estar y terraza, por el otro. Estos ejes se materializan a través de elementos móviles, que permiten modular la permeabilidad física y visual de las estancias, y garantizan privacidad o apertura según el momento de uso.
Un office multifuncional
La cocina, concebida para un uso diario, se integra en el conjunto gracias a que el office fue diseñado con una meseta que se abre en dos direcciones: una conecta con el comedor mediante una puerta corredera, y la otra se orienta hacia el salón y la terraza a través de una gran ventana. Esta disposición permite que el espacio funcione tanto para cocinar y desayunar como para trabajar, leer o disfrutar de otras actividades cotidianas.
Baño-armario y cama extraíble
El eje del estudio, vinculado al estar, puede cerrarse y transformarse en un espacio privado para teletrabajo o, incluso, en un dormitorio, gracias a dos elementos integrados: un baño-armario y una cama extraíble escondida bajo la escalera. Algunos paramentos se perfilan con carpinterías de acero gris, en continuidad con los cerramientos exteriores de la vivienda, especialmente entre el office y el salón o entre este último y la terraza, rompiendo los límites entre interior y exterior.
Escalera concebida como un mueble contenedor
La escalera trasciende su función como elemento de conexión: se transforma en un mueble contenedor con un segundo tramo mas ligero que se convierte en un mueble añadido sobre el primero, con uniones propias de la carpintería japonesa. Su base alberga una grada para sentarse que oculta los juegos de la familia, una ventana-marco para observar, y una pequeña hornacina, recordando un tokonoma. La escalera incorpora referencias de Tetsuro Yoshida y Adolf Loos, convirtiéndose en el escenario donde sucede la vida cotidiana dentro de la casa.
Madera de roble, material protagonista del dúplex
La madera de roble con acabado al aceite natural se utiliza de manera estratégica en toda la vivienda. Se encuentra en la cálida tarima de la planta superior y se convierte en protagonista en el espacio de la escalera, descendiendo hasta matizar el zócalo de la planta inferior y aportando a la gran estancia una escala amable. Desde este núcleo central, donde se dibuja una topografía completamente tallada en madera, el material se extiende por los paramentos verticales de la casa, ofreciendo un espacio háptico protegido por la calidez de la carpintería que, en contacto con el suelo de gres porcelánico gris, adquiere textura, evocando elementos vegetales. El zócalo de madera alistonada recorre toda la espina central de la vivienda, intercalándose con distintas carpinterías verticales, incluyendo la puerta corredera de hojas pareadas del estudio, de evidente inspiración japonesa.
Criterios de sostenibilidad y eficiencia
El proyecto responde también a criterios de sostenibilidad y eficiencia: suelo radiante, gres duradero, renovación de la envolvente térmica, carpinterías optimizadas para una mejor iluminación natural y materiales naturales y locales. «Reivindicamos el trabajo con el acero y la madera, oficios en riesgo de desaparición, que han permitido que la arquitectura construya espacios hápticos y sensoriales para las personas», comentan los arquitectos.
Nuevas necesidades y formas de habitar
Por último, la intervención también contribuye a la renovación del tejido urbano de viviendas construidas durante el desarrollismo, adaptando el dúplex a nuevas formas de habitar más acordes con los usuarios y con los estándares de calidad del siglo XXI. Los espacios se flexibilizan para acoger distintos usos, respondiendo tanto a las necesidades actuales como a las futuras, lo que contribuye a prolongar la vida útil de la vivienda. Entre estas soluciones destacan el estudio convertible en estar o dormitorio, la cocina amplia y funcional que fomenta una slow life, y la decisión de mantener la terraza abierta a los jardines comunitarios, integrando la vivienda con su entorno.
LAS IMÁGENES DE GABRIEL GALLEGOS ALONSO:



















FICHA TÉCNICA:
- Proyecto: 1+1=3 ó más.
- Ubicación: Santander (España).
- Superficie: 151,71 m².
- Completado: octubre 2025.
- Autores: Sagrario Fernández Raga y Carlos Rodríguez Fernández, Arquitectos.
- Dirección de ejecución: Eva Martínez Fernández, arquitecta técnica.
- Cálculo estructura: Gamaliel López.
- Constructora: Logo Hogar Reformas.
Carpinterías:
- Carpintería metálica: Antonio Fuertes Sáez, Talleres metálicos Fuertes.
- Carpinterías exteriores de aluminio: Cortizo, Ventanas Novoa.
- Carpintería de madera: Ramón Agudo Pérez, TCDM.
Materiales y profesionales:
- Madera maciza de roble americano: Marino de la Fuente.
- Tableros: Finsa, Maderas Moratinos.
- Tratamiento de la madera: Ana Guardo Llorente, Central de Parquets.
- Acuchillador: Francisco Guardo Ibars, Parquets Guardo.
Acabados y equipamientos:
- Revestimiento alistonado: tablero modelo Asolo Milled Panel en roble (Latho).
- Pavimento gres: Porcelanosa Grupo.
- Iluminación: Green Iluminación & Decó.
Fotografías: Gabriel Gallegos Alonso.
PLANIMETRÍA:

AXONOMETRÍA:

SOBRE SAGRARIO FERNÁNDEZ RAGA Y CARLOS RODRÍGUEZ FERNÁNDEZ:
El equipo formado por Sagrario Fernández Raga y Carlos Rodríguez Fernández, Arquitectos ha realizado diversos proyectos de intervención y rehabilitación de viviendas y paisajes domésticos. Entre ellos, destaca la obra Un jardín secreto, seleccionada y expuesta en la exposición Young European Architects, dentro de la Bienal de Arquitectura de Venecia en 2021 y catalogada en la VIII Edición Arquia Próxima Resiliencia, un equilibrio dinámico 2020-2021.
Ambos son doctores arquitectos por la Escuela de Arquitectura de Valladolid y profesores del Departamento de Teoría de la Arquitectura y Proyectos Arquitectónicos. «Paisajes patrimoniales en coexistencia», tesis doctoral de Sagrario, recibió el premio a la Mejor Tesis Doctoral del IUACC de la Universidad de Sevilla y ha sido publicada (2020) con el nº57 de la serie Textos de Doctorado de su editorial. La tesis de Carlos, «Topografías Arquitectónicas en el Paisaje Contemporáneo», ha sido publicada (2019) con el nº55 en esta misma colección y ha sido finalista en la categoría de publicaciones en la XIII Bienal Española de Arquitectura y Urbanismo (2021).
Ambos forman parte del equipo LAB/PAP –Laboratorio de Paisaje Arquitectónico, Patrimonial y Cultural de la Universidad de Valladolid, dirigido por Darío Álvarez y M.A. de la Iglesia- con importantes proyectos realizados en vías patrimoniales y paisajes arqueológicos en diversas villas y ciudades romanas como Clunia (Burgos) y Tiermes (Soria). Estos proyectos han obtenido importantes reconocimientos nacionales e internacionales: premios de Arquitectura de Castilla y León en las categorías de Restauración y Paisaje; finalista en las XI y XIII Bienales de Arquitectura Española y Urbanismo por la Restauración del Teatro Romano de Clunia en sus diferentes fases en 2011 y 2021, y Mención Honorífica del Piranesi Prix de Rome (2014). Recientemente, ha sido publicada una monografía completa de la obra de LAB/PAP en la prestigiosa colección Documenti di architettura (nº 208) de la editorial italiana Electa.
Fuente: Gabriel Gallegos






Leave A Reply