
DELEGACIÓN DEL COAL EN SALAMANCA:
La Oficina de Acciones Arquitectónicas Temporales (OAAT) ha sido la encargada de realizar la reforma de la delegación en Salamanca del Colegio Oficial de Arquitectos de León (COAL), convirtiéndose en una oportunidad para revisar los espacios de trabajo cotidianos de un colegio profesional. La intervención planteó una reflexión precisa sobre cómo adaptar los espacios profesionales a los nuevos tiempos, recuperando al mismo tiempo su relación con la ciudad. A través de una estrategia clara y contenida, el proyecto reordena, abre y actualiza un interior fragmentado, transformándolo en un entorno flexible, luminoso y responsable en términos de sostenibilidad.
Espacios adaptables y polivalentes
En este contexto, y de manera acorde a unos tiempos en los que los espacios de trabajo han evolucionado hacia la apertura, la multifunción y la organización adaptable que permite a los usuarios gestionar las conexiones entre espacios, se apostó por una organización basada en espacios abiertos, adaptables y polivalentes, predispuestos a la digitalización y el teletrabajo.
Sencillas estrategias para grandes cambios
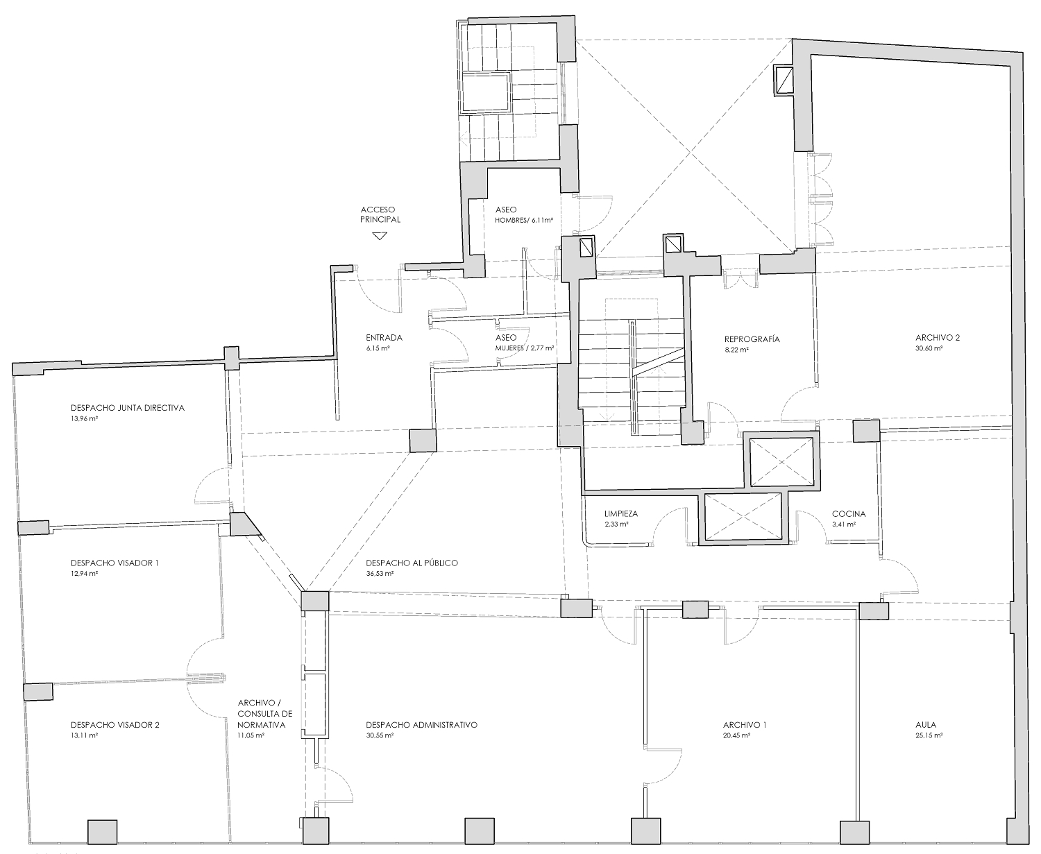
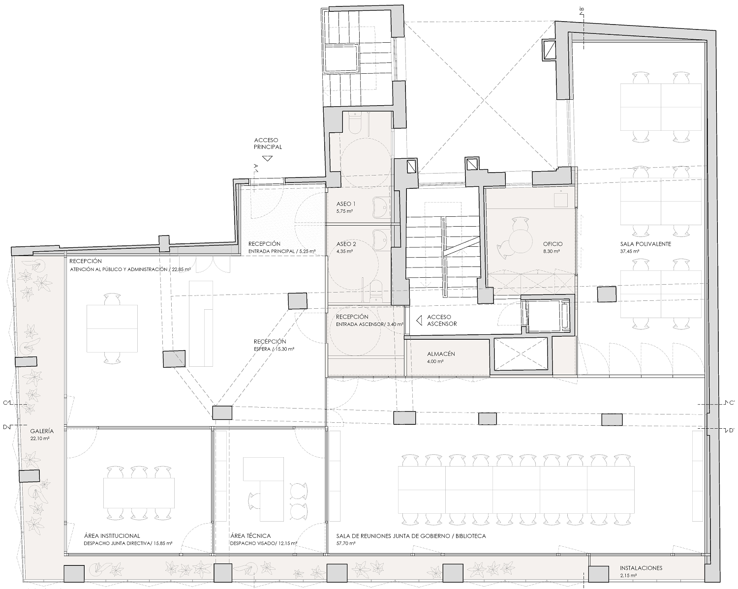
La intervención, determinada por las características del inmueble de origen y la experiencia de sus usuarios, se basó en una serie de sencillas estrategias que cambiaron la estructura y la percepción espacial del lugar. Por un lado, se llevó a cabo el vaciado y la limpieza interior de divisiones y añadidos, dando lugar a una sala diáfana definida por la estructura de hormigón existente. Por otro, se proyectó una galería perimetral con una doble piel que resuelve el nuevo cerramiento de la fachada mediante una celosía practicable. Esta genera un espacio intermedio que amortigua y filtra el soleamiento, la iluminación y las vistas desde el interior acristalado.
Asimismo, se incorporaron las divisiones interiores justas y transparentes, que conservan la sensación de amplitud y luminosidad, y permiten las conexiones visuales entre salas. Finalmente, se formó un núcleo junto patio interior con cuartos de servicio y almacenes, liberando el resto.
Programa organizado gradualmente en función del uso diario
El programa se organiza de forma gradual desde el acceso, en función del uso diario: desde las áreas de atención al público y administración, los despachos, pasando por la biblioteca y la sala de reuniones, hasta llegar, al fondo, a la sala polivalente destinada a cursos y conferencias. Su carácter multiusos permite, mediante una partición móvil, configurar una sala de eventos y exposiciones de alrededor de 90 m². En el núcleo de servicios interior se disponen aseos y una entrada accesible, cuartos de almacén e instalaciones, así como un oficio para eventos y descanso del personal.
Imagen sobria y homogénea
Para conseguir una imagen sobria y homogénea, los arquitectos optaron por una paleta de materiales y sistemas limitada. Se aplicó un mortero de corcho sobre los techos y la estructura de hormigón, lo que permitió mejorar el acondicionamiento acústico minimizando los espesores. El pavimento se resolvió mediante un suelo continuo con acabado epoxy. Las carpinterías y los tableros son de pino natural tintado, mientras que los espacios del núcleo de servicios se revistieron con un azulejo en tono verde, similar al que ya existía. Por su parte, las contraventanas metálicas de la fachada se lacan en negro e incorporan la rotulación de la Delegación mediante perforaciones.
Estrategias pasivas orientadas a reducir la demanda energética
En términos de sostenibilidad y eficiencia energética, se priorizó la incorporación de estrategias pasivas orientadas a reducir la demanda. De esta manera, la nueva galería actúa como una cámara intermedia de protección y regulación de las estancias interiores. Las celosías practicables exteriores permiten ajustar la incidencia solar según la época del año, mientras que las carpinterías de madera con vidrios dobles con cámara refuerzan el aislamiento. Además, se actualizaron la climatización mediante bombas de calor de alta eficiencia, la iluminación con tecnología LED y la ventilación, garantizando la calidad del aire interior.
LAS IMÁGENES DE GABRIEL GALLEGOS:












FICHA TÉCNICA:
- Proyecto: Reforma de la sede de Salamanca del Colegio Oficial de Arquitectos de León (COAL).
- Ubicación: Salamanca (España).
- Superficie: 257 m².
- Completado: 2025.
- Autor: Oficina de Acciones Arquitectónicas Temporales (OAAT).
- Arquitectos a cargo: Miriam Otero y Pablo Alonso.
- Constructora: Termas Spazio.
Ingeniería y consultoría:
- Acústica: AS4 Ingeniería.
- MEP: Fernando Pérez Macías.
Fotografías: Gabriel Gallegos.
PLANIMETRÍA:




SOBRE LA OFICINA DE ACCIONES ARQUITECTÓNICAS TEMPORALES (OAAT):
La Oficina de Acciones Arquitectónicas Temporales (OAAT) desarrolla su actividad en Salamanca (España) desde 2014, acompañando tanto a clientes particulares como a administraciones públicas en el proceso de proyecto con una gestión íntegral. El contexto de sus trabajos es amplio, partiendo desde el ámbito doméstico, pasando por edificación de distintas tipologías, equipamientos y espacio público, hasta el ámbito urbano. Dirigida por Miriam Otero (Segovia) y Pablo Alonso (Ávila), arquitectos por la ETSAVA / Universidad de Valladolid (2010) y Máster en Proyectos Arquitectónicos Avanzados por la ETSAM / Universidad Politécnica de Madrid (2012), la oficina cuenta con la colaboración de profesionales especializados en diferentes disciplinas.
Fuente: Gabriel Gallegos y en la web de OAAT






Leave A Reply